Casa GC

Luce, organizzazione e flessibilità

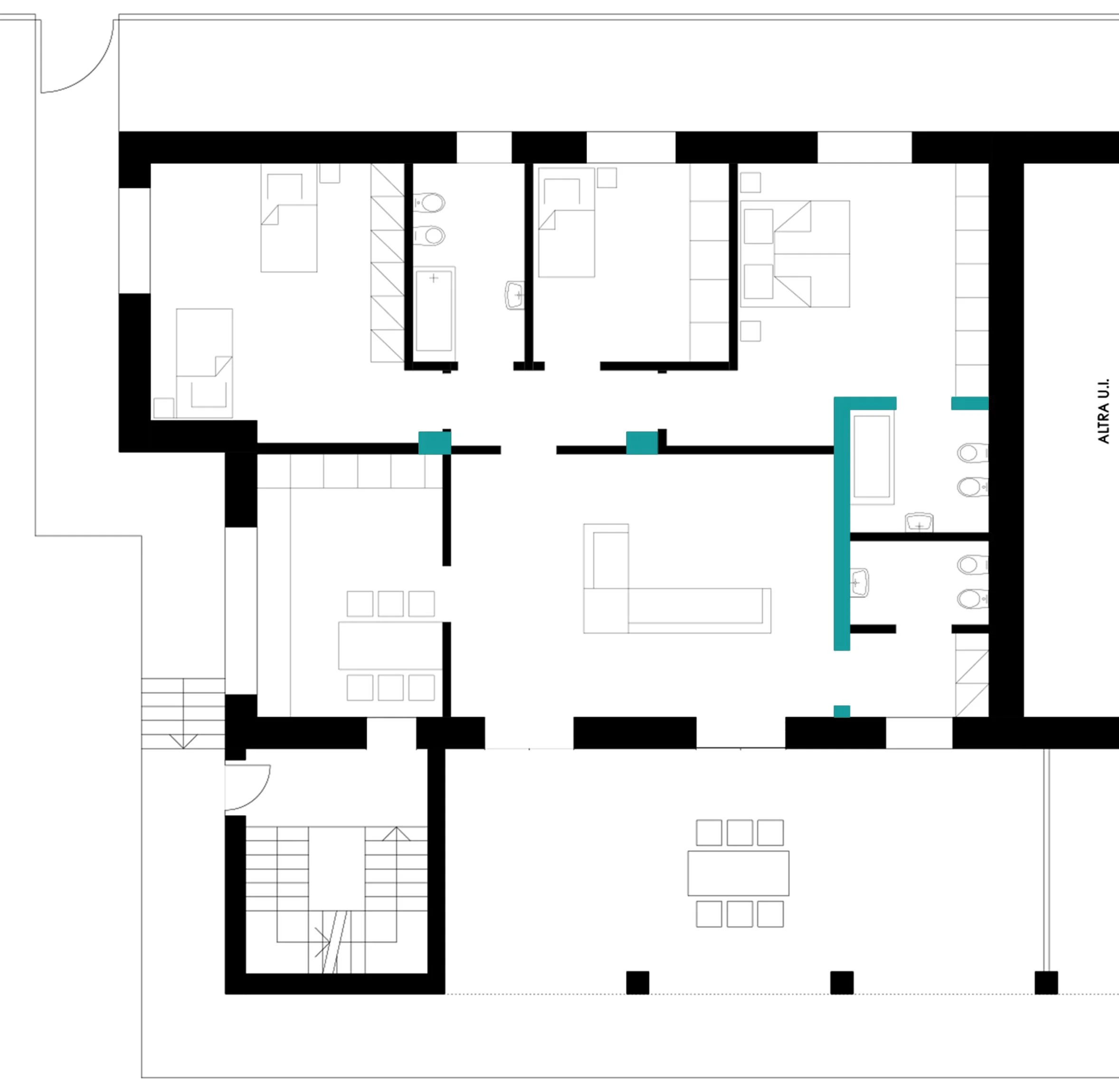
In origine, l’abitazione presentava ambienti ampi ma disarticolati, con stanze sovradimensionate e una zona giorno interrotta da pareti che spegnevano la luce naturale.
Il progetto ha ricomposto la casa in tre fasce funzionali, restituendo equilibrio e fluidità ai percorsi: camere più proporzionate, un corridoio attrezzato e un’unica grande zona giorno con sala da pranzo, soggiorno e cucina separata.
Ne è nata una casa luminosa e versatile, capace di adattarsi a differenti assetti d’uso grazie al sistema di porte lungo il corridoio, che permette di modulare la privacy e creare zone indipendenti all’interno dell’abitazione.
Uno spazio contemporaneo, sobrio e coerente, pensato per accompagnare le diverse fasi della vita quotidiana.

Prima dell’intervento:

Dopo l’intervento:

Modifiche apportate:

Next
Next

Casa MB